27 квадратных метров, где поместились камин, пианино, контрабас и многое другое
Обычно, при оформлении маленькой квартиры приходится в чём-то ограничиваться и отказываться от многих предметов интерьера. Кто-то жертвует большим шкафом, кому-то не хватает места для размещения рабочего места.

Но владелец крошечной квартиры в Вильнюсе не смог отказаться от своих любимых музыкальных инструментов, которые уж точно не назовёшь миниатюрными.
Квартира музыканта в Вильнюсе
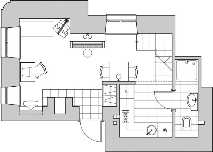
Апартаменты, о которых идёт речь, расположены всего на 27-ми квадратных метрах. Здесь всего одна комната, но в ней есть гостиная, рабочая, спальная, столовая и кухонная зоны. Все они гармонично соседствуют под одной крышей благодаря высоким потолкам (около 3,7 метров).

Планировка квартиры
Спальню было решено поднять на второй уровень. Этот приём всё чаще встречается в небольших пространствах, так как он вполне оправдывает себя. Так как снизу появилась комфортная кухня с полным набором бытовой техники и кухонных шкафов, а также вместительный гардероб для вещей.

Спальное место на втором уровне
Разрабатывал и реализовывал проект этой квартиры архитектор Далюс Регельскис (Dalius Regelskis). Над цветовой гаммой ему долго работать не пришлось. Для парадной зоны выбрали цвет капучино, акцентные детали выполнили в шоколадном оттенке. Получилось достаточно сдержано, элегантно и стильно.

Владелец квартиры жить не может без своих инструментов
Другая часть квартиры получилась более активной в цветовом плане. Здесь главенствует синий, который очень нравится владельцу жилища. Его решили разбавить тёплым оранжевым цветом, который вносит в пространство нотки тепла и делает его более динамичным.

Комфортная кухня

Яркая и жизнерадостная цветовая гамма
Нельзя оставить без внимания тот факт, что помимо всех функциональных зон в этой крошечной квартире удалось найти место для пианино и контрабаса, без которых владелец апартаментов не представляет своей жизни. Наряду с ними выделяется и массивный камин. Так как дому уже больше ста лет, убирать такое украшение было бы просто кощунством. Чтобы сбалансировать пространство, напротив камина установили зеркальную дверь (там как раз располагается гардероб).

Старинный камин

Кирпичная кладка, которой более 100 лет
Санузел в этой квартире очень маленький и узкий, но и здесь нашли практичные и удачные решения для визуального расширения пространства. Для этого использовали мелкую вертикальную плитку, сделали акцент на пол и установили широкое зеркало на полстены.

Маленький санузел

Но владелец крошечной квартиры в Вильнюсе не смог отказаться от своих любимых музыкальных инструментов, которые уж точно не назовёшь миниатюрными.

Квартира музыканта в Вильнюсе
Апартаменты, о которых идёт речь, расположены всего на 27-ми квадратных метрах. Здесь всего одна комната, но в ней есть гостиная, рабочая, спальная, столовая и кухонная зоны. Все они гармонично соседствуют под одной крышей благодаря высоким потолкам (около 3,7 метров).

Планировка квартиры
Спальню было решено поднять на второй уровень. Этот приём всё чаще встречается в небольших пространствах, так как он вполне оправдывает себя. Так как снизу появилась комфортная кухня с полным набором бытовой техники и кухонных шкафов, а также вместительный гардероб для вещей.

Спальное место на втором уровне
Разрабатывал и реализовывал проект этой квартиры архитектор Далюс Регельскис (Dalius Regelskis). Над цветовой гаммой ему долго работать не пришлось. Для парадной зоны выбрали цвет капучино, акцентные детали выполнили в шоколадном оттенке. Получилось достаточно сдержано, элегантно и стильно.

Владелец квартиры жить не может без своих инструментов
Другая часть квартиры получилась более активной в цветовом плане. Здесь главенствует синий, который очень нравится владельцу жилища. Его решили разбавить тёплым оранжевым цветом, который вносит в пространство нотки тепла и делает его более динамичным.

Комфортная кухня

Яркая и жизнерадостная цветовая гамма
Нельзя оставить без внимания тот факт, что помимо всех функциональных зон в этой крошечной квартире удалось найти место для пианино и контрабаса, без которых владелец апартаментов не представляет своей жизни. Наряду с ними выделяется и массивный камин. Так как дому уже больше ста лет, убирать такое украшение было бы просто кощунством. Чтобы сбалансировать пространство, напротив камина установили зеркальную дверь (там как раз располагается гардероб).

Старинный камин

Кирпичная кладка, которой более 100 лет
Санузел в этой квартире очень маленький и узкий, но и здесь нашли практичные и удачные решения для визуального расширения пространства. Для этого использовали мелкую вертикальную плитку, сделали акцент на пол и установили широкое зеркало на полстены.

Маленький санузел
Только зарегистрированные и авторизованные пользователи могут оставлять комментарии.
0
Просто отлично!
- ↓

